38 logements BBC

Rue de Toul

Notre choix d'implantation

Nous avons choisi de concevoir un immeuble « épais » qui ainsi utilise la totalité du droit à construire de la bande E. L’immeuble se retourne sur une largeur d’environ 6 m le long de la limite Sud où il est possible de s’élever sur 6 niveaux.




Nous complétons notre emprise au sol avec un petit bâtiment R+1 situé dans l’angle Nord Ouest. L’appartement au RDC bénéficie d’un jardin privatif

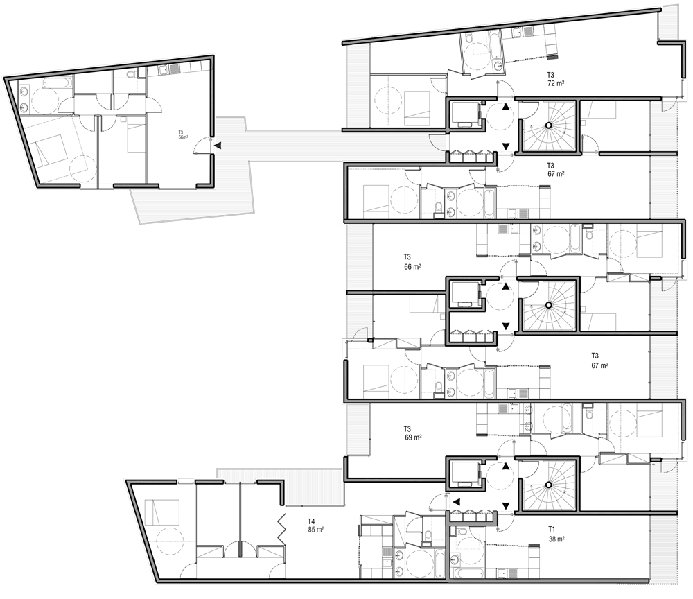
L’ORGANISATION DES ESPACES

Notre proposition développe un dispositif dont la clarté logique de l’organisation et de la structure permet d’avoir pour la quasi-totalité des logements :

  • une configuration traversante ou une double orientation
  • un espace extérieur en plus
  • une superposition des fonctions d’étage en étage apportant une grande rationalité constructive (structure, fluide, ventilation)

Nous concevons dans « l’immeuble épais » des appartements qui se développent en longueur le long de l’axe Est/ Ouest. Cela permet, dès le T2, d’obtenir une majorité d’appartements traversants. Leur espace est amplifié par l’étirement de la géométrie. A chaque extrémité des logements, les pièces se prolongent sur un espace extérieur protégé par une membrane protectrice en bois.

Au RDC nous prévoyons un local commun, « la salle des anniversaires » qui se prolonge, vers l’extérieur, dans la cour. Le niveau du sol est légèrement abaissé ce qui permet de bien distinguer les zones privées des zones publiques de l’espace extérieur. Sur rue, nous proposons des locaux destinés à diverses activités (artisanales, bureaux…)

Nous élevons le bâtiment en articulant 2 composantes fortes :

  • 1. La couleur : il s’est enraciné le soupçon que la couleur en architecture n’est qu’un artifice de surface, de pure cosmétologie. Dépassant la simple fonction d’ornementation, nous utilisons la couleur dans les loggias comme révélateur de vide et donc d’espace. La couleur, se situe à la frontière entre la matière (le pigment) et la perception (donner la « place dans l’espace » )
  • 2. Le bois : c’est un matériau de construction trop peu exploité, qui a pourtant les qualités d’une matière première « augmentée » : bilan carbone positif, stockant du CO², facile à produire, peu coûteux dans ses conversions, il se présente comme un des matériaux les plus renouvelables qui soient. Le bois est mis en scène comme filtre naturel au service des espaces de loggia.

Ces 2 éléments sont, dans la composition d’ensemble, pensés comme une addition efficace, presque mathématique, mettant en exergue leur complémentarité et démultipliant un empilement d’éléments qui apparaît autrement cernés.