Les Grenadilles, 19 logements

La Possession (97419) 1 950 m²

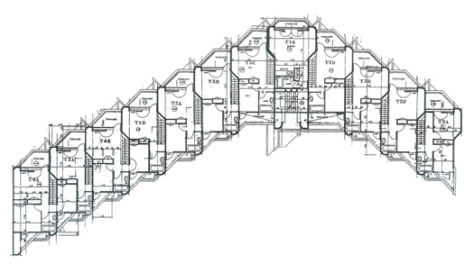
L'immeuble comprend 19 logements du studio au 5 pièces. L'implantation a été guidée par une adaptation minutieuse au terrain afin de minimiser les terrassements sur un terrain rocheux.

En plan les décalages successifs rythment la façade et préservent des espaces extérieurs sans vue latérale. Les appartements sont en général en duplex et bénéficient d'un petit jardin privatif.