Commissariat de Saint-Ouen

Saint-Ouen Ministère de l'intérieur




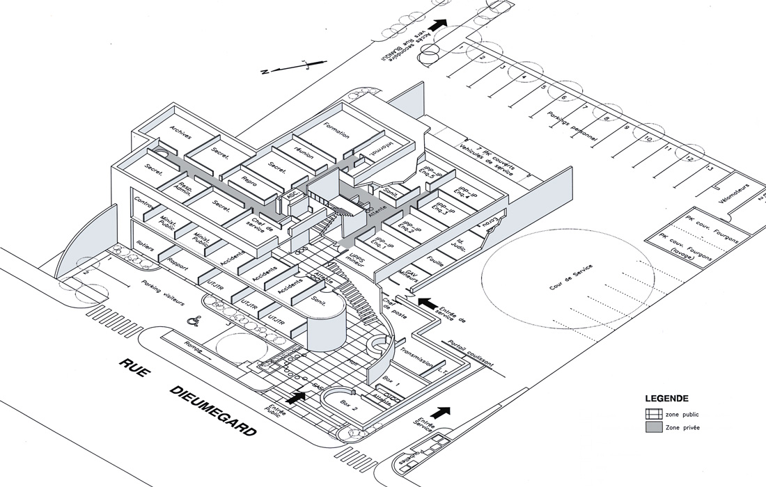
Le commissariat de Saint-Ouen s’implante dans un immeuble à deux étages sur sous sol.
Cette disposition, au delà des problématiques de fonctionnement, a été retenu pour permettre :

  • de dégager une vaste cour de service. On y manœuvrera facilement et un stationnement complémentaire peut y être organisé (renforts occasionnels par exemple).
  • d'implanter en surface l'ensemble des parkings affectés au service ou bien réservés au personnel,
  • de proposer, dans la rue, un volume bâti à l'échelle des voisins existants.


Ainsi la façade sur la rue Dieumegard, du fait de ces trois niveaux au dessus du sol qui s’étage vers l’ouest, traite l’accroche sur le pignon aveugle mitoyen.
L’accès du public à l'immeuble se fait au travers d’un hall dont le traitement chaleureux exprime la dimension de proximité de l’institution policière. Ce hall est dessiné selon un tracé courbe pour lui donner souplesse et fluidité, et traiter avec convivialité l'accueil du public.
Les matériaux utilisés (béton architectonique et placages menuisés en bois blond) apportent chaleur et dignité.
Un escalier monumental et un ascenseur conforme à la réglementation PMR donnent accès, après passage à la banque d'accueil, à la partie du R+1 accessible au public.